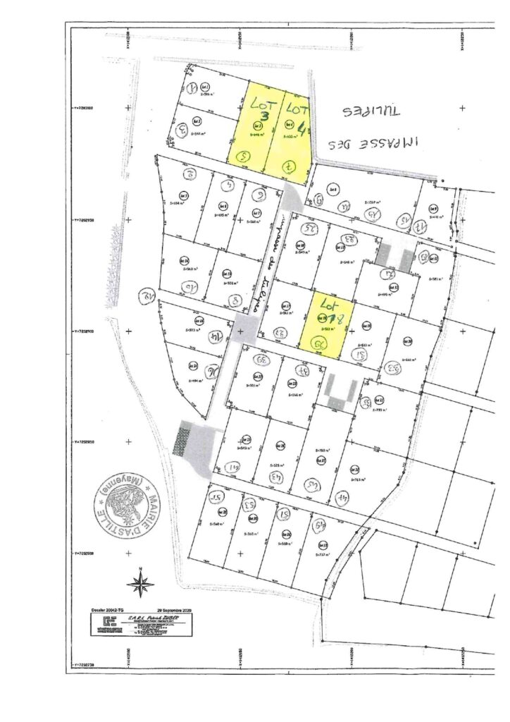
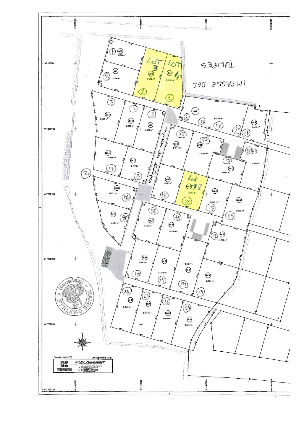
✨ Dernières opportunités au lotissement de la Prée ! ✨
🏡 Il ne reste plus que 3 parcelles disponibles pour construire votre futur chez-vous à Astillé.
📞 Pour plus d’informations, contactez la mairie :
➡️ Téléphone : 02 43 98 83 86
➡️ Mail : contact@mairie-astille.fr


Mis à jour le 10.01.2025